Description
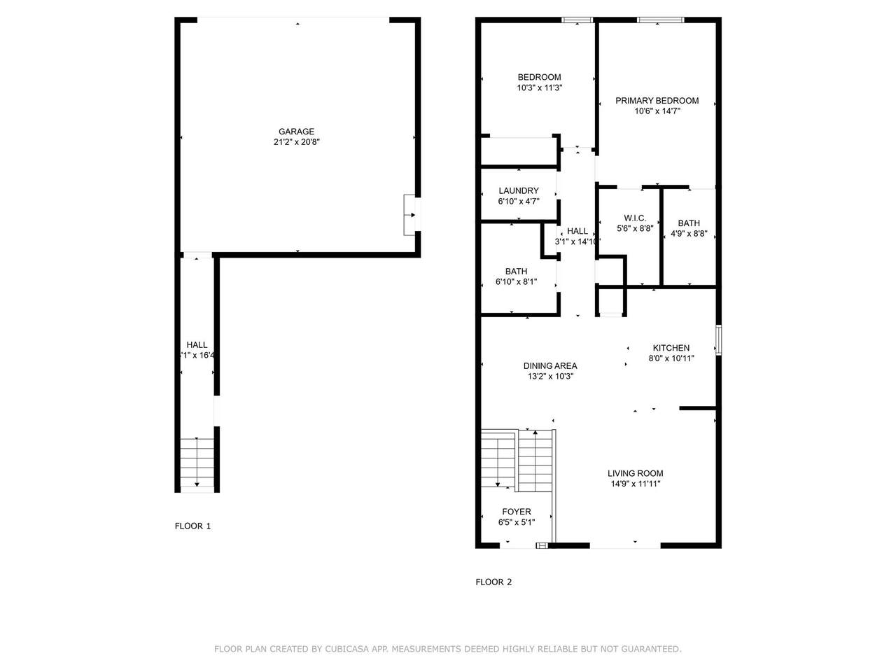
Unique and versatile 3-bedroom, 3-bath standalone condo offering 1,628 square feet and currently configured as two separate units. Unit AB is a 2-bedroom, 2-bath upstairs leased for $1,575/month, and Unit C is a 1-bedroom, 1-bath downstairs leased for $1,000/month through July 12, 2026. This flexible layout features two kitchens, two living areas, and a 2-car garage—ideal for multi-generational living, guests, or income-producing potential. The upstairs unit showcases an open floorplan and a private balcony, perfect for relaxing outdoors. A floorplan is provided to highlight the many possibilities this thoughtfully designed property offers for both investors and owner-occupants. All exteriors including ground maintenance, roofs, & siding is done through the HOA. Pictures are of the property when it was vacant and is currently fully rented with tenants and needs a next day showing notice if you would like to see it.
-
3BEDS
-
0.25ACRES
-
3BATHS
-
01/2 BATHS
-
1,628SQFT
-
$154$/SQFT
School Information
Description
Unique and versatile 3-bedroom, 3-bath standalone condo offering 1,628 square feet and currently configured as two separate units. Unit AB is a 2-bedroom, 2-bath upstairs leased for $1,575/month, and Unit C is a 1-bedroom, 1-bath downstairs leased for $1,000/month through July 12, 2026. This flexible layout features two kitchens, two living areas, and a 2-car garage—ideal for multi-generational living, guests, or income-producing potential. The upstairs unit showcases an open floorplan and a private balcony, perfect for relaxing outdoors. A floorplan is provided to highlight the many possibilities this thoughtfully designed property offers for both investors and owner-occupants. All exteriors including ground maintenance, roofs, & siding is done through the HOA. Pictures are of the property when it was vacant and is currently fully rented with tenants and needs a next day showing notice if you would like to see it.
© 2026 Austin Board of REALTORS® (alternatively, from ACTRIS). All information provided is deemed reliable but is not guaranteed and should be independently verified. The Austin Board of REALTORS®, ACTRIS and their affiliates provide the MLS and all content therein “AS IS” and without any warranty, express or implied.The information provided is for consumers' personal, non-commercial use and may not be used for any purpose other than to identify prospective properties consumers may be interested in purchasing. Data last updated: 2026-04-20T00:00:10.913.
Based on information submitted to the MLS GRID as of 2026-04-20T00:00:10.913 (date and time MLS GRID Data was obtained).
All data is obtained from various sources and may not have been verified by broker or MLS GRID. Supplied
Open House Information is subject to change without notice. All information should be independently reviewed and verified for accuracy. Properties may or may not be listed by the office/agent presenting the information.
Click here for MLS GRID DMCA Notice