Description
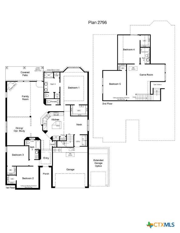
Find your home in the Sterling Meadows community in Salado, TX with the Newburgh floorplan. With approximately 3,043 sq. ft., you’ll have the perfect space in this 5 bedroom, 3.5 bath layout. Park your car or store your belongings in the attached 2-3 car garage option. When you walk in the door, you’ll have access to 2 secondary bedrooms and a secondary bathroom. Walking further down the hall, you will enter the dining room with the option of study and family room. Enjoy the covered patio that is connected to the family room. Find the primary bedroom next to the kitchen, with a spacious walk-in closet and bathroom with a double vanity sink and a walk-in shower. You will also have access to the kitchen that is separated from the great room by a breakfast bar. Enjoy the spacious kitchen with its beautiful flat panel maple cabinetry and decorative tile backsplash, along with stainless-steel appliances. Find access to the laundry room and garage from the kitchen that is right next to the stairs leading to the second floor where you will immediately find the game room, with access to 2 secondary bedrooms with walk-in closets and secondary bathroom. Want to learn more about the Newburgh floorplan? Contact us today!
-
5BEDS
-
0.67ACRES
-
3BATHS
-
11/2 BATHS
-
3,043SQFT
-
$158$/SQFT
School Information
© 2026 Central Texas MLS.
Listing courtesy of Eleonora Santana of Nexthome Tropicana Realty: (254) 616-1850.
Description
Find your home in the Sterling Meadows community in Salado, TX with the Newburgh floorplan. With approximately 3,043 sq. ft., you’ll have the perfect space in this 5 bedroom, 3.5 bath layout. Park your car or store your belongings in the attached 2-3 car garage option. When you walk in the door, you’ll have access to 2 secondary bedrooms and a secondary bathroom. Walking further down the hall, you will enter the dining room with the option of study and family room. Enjoy the covered patio that is connected to the family room. Find the primary bedroom next to the kitchen, with a spacious walk-in closet and bathroom with a double vanity sink and a walk-in shower. You will also have access to the kitchen that is separated from the great room by a breakfast bar. Enjoy the spacious kitchen with its beautiful flat panel maple cabinetry and decorative tile backsplash, along with stainless-steel appliances. Find access to the laundry room and garage from the kitchen that is right next to the stairs leading to the second floor where you will immediately find the game room, with access to 2 secondary bedrooms with walk-in closets and secondary bathroom. Want to learn more about the Newburgh floorplan? Contact us today!
Related Properties
© 2026 Central Texas Multiple Listing Service, Inc. All rights reserved. IDX information is provided exclusively for consumers' personal, non-commercial use and may not be used for any purpose other than to identify prospective properties consumers may be interested in purchasing. Some properties which appear for sale on the website may no longer be available because they are for instance, under contract, sold or are no longer being offered for sale. Information is deemed reliable but is not guaranteed accurate by the MLS or The Barrientos Group - KW Central Texas. Data last updated: 2026-01-20T00:05:53.08.
